$1,995,000
( $215.61Per Sq Foot )
 $10,710 est/mo Sourced by Back At You

7100 N Classen Boulevard 400,Oklahoma City, OK 73116

Oklahoma City, OK 73116

Share:

Description

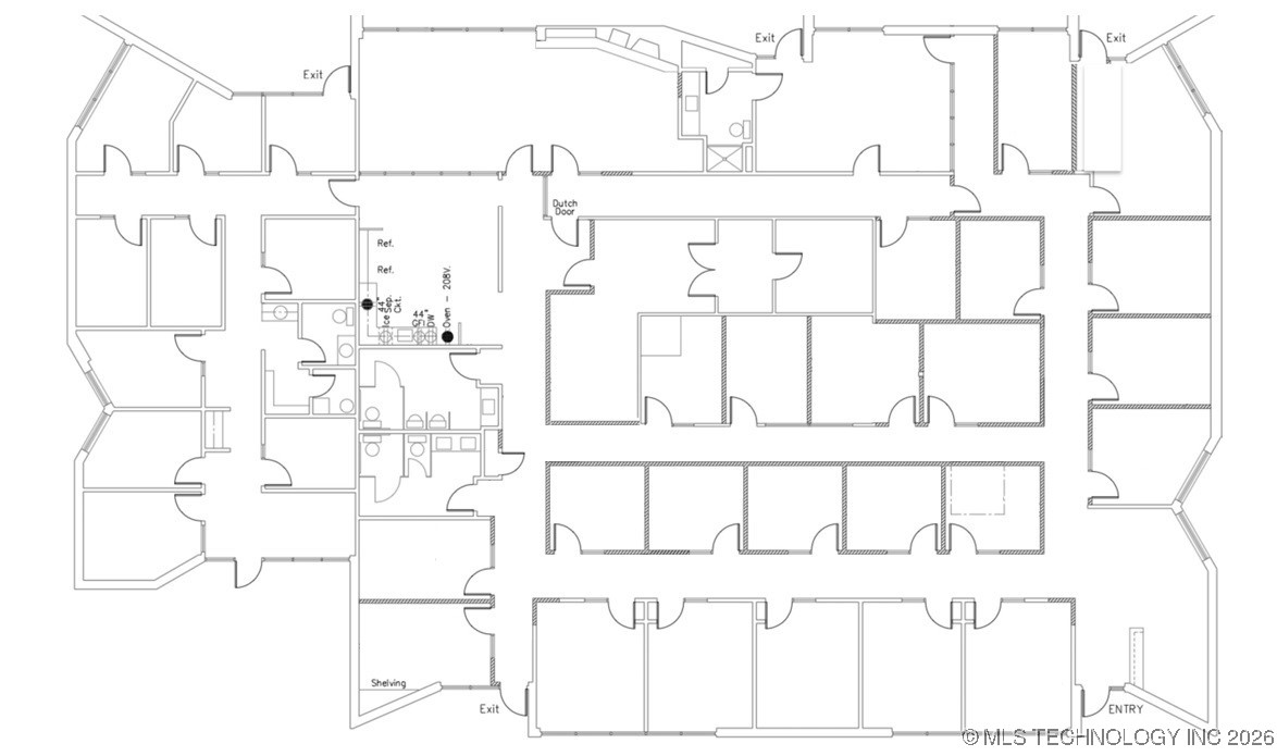
Welcome to 7100 North Classen Blvd., Suite 400 an exceptional, Turkey office space in the heart of Oklahoma City! This completely remodeled 9253 square-foot property is designed to meet the needs of the modern business, featuring 35 private offices, One spacious conference room, two welcoming reception areas, a fully equipped kitchen, and at four ADA compliant restrooms. Conveniently located near Nichols Hills with seamless access to 235 and I 44, this property offers unmatched convenience for clients and employees alike. Enjoy close proximity to an array of shops, restaurants, bars, and entertainment venues. With ample parking and a thoughtfully, design layout, this space is ideal for businesses, looking for a professional and polished environment. Don’t miss the incredible opportunity to elevate your business to one of Oklahoma City’s most desirable locations!

Details

MLS #2600692
Listing TypeFor Sale
StyleBuilding
Sub-TypeResale
StatusActive
Year1984
Days On Site80
Listing Provided ByOffice Staging Realty | David Roberts

Features

SQ Feet9,253
ZoningComm

Taxes

Tax Annual Amount0

Area Information

StateOK
CountyOklahoma
CityOklahoma City
Zip Code73116
Sourced by Back At You

Request a showing

Request a showing

Loading Form
MLS Internet Data Exchange (IDX) information is provided exclusively for consumers’ personal, non-commercial use and may not be used for any purpose other than to identify prospective properties consumers may be interested in purchasing, and that the data is deemed reliable but is not guaranteed accurate by the Back at You MLS.

Contact

Learn More About This Property

StateOK
CountyOklahoma
CityOklahoma City
Zip Code73116
Sourced by Back At You
Nearby Listings (Within 1/10 mile)
Price: $1.496M - $2.493M
sqft: 6,500 - 11,500
Nearby Listings Property ImageNearby Listings Details
7100 N Classen Boulevard 400 Property Photo 1
$21,500
7100 N Classen Boulevard 400
Oklahoma City, OK 73116
Listing Updated: February 5, 2026, 12:40:08 PM UTC
Real Estate Links Our Domains