$47,500
 $255 est/mo Sourced by Back At You

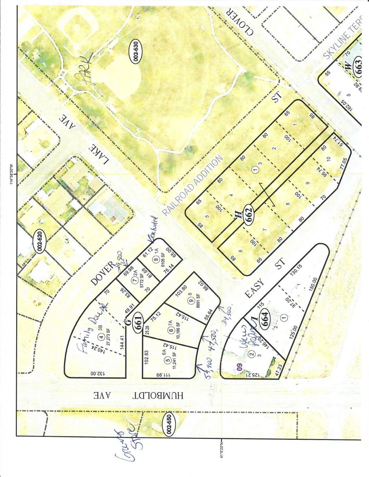
6 Easy Street,Wells, NV 89835

Wells, NV 89835

Share:

Description

Total of 5 lots remain on this City Block at West Wells exit. Infrastructure surrounds the property, buyer will need to bring onto parcel.. Great location for your business. Wells is growing and will be in need of many types of business. Grocery Store/hardware is across the street, city park to the east and 1 block from post office, library and medical center. Drive by and check these lots out! Owner Terms with 10% to 20% Down payment!

Details

MLS #3617587
Listing TypeFor Sale
Sub-TypeResale
StatusAc
Days On Site2461
Listing Provided ByOffice Staging Realty | Lori Bottari

Features

ZoningTC
Acreage0.23
Property ViewYes

Exterior

Lot FeaturesLevel

Taxes

Property151

Other

List AorElko County Association Of Realtors

Area Information

StateNV
CountyElko
CityWells
Zip Code89835
AreaWells Area
SubareaWells
Community NameRailroad Addition
Sourced by Back At You

Request a showing

Request a showing

Loading Form
Listings courtesy of Stellar MLS as distributed by MLS GRID.Based on information submitted to the MLS GRID as of March 27, 2026, 8:27:02 AM UTC All data is obtained from various sources and may not have been verified by broker or MLS GRID. Supplied Open House Information is subject to change without notice. All information should be independently reviewed and verified for accuracy. Properties may or may not be listed by the office/agent presenting the information. The Digital Millennium Copyright Act of 1998, 17 U.S.C. § 512 (the “DMCA”) provides recourse for copyright owners who believe that material appearing on the Internet infringes their rights under U.S. copyright law. If you believe in good faith that any content or material made available in connection with our website or services infringes your copyright, you (or your agent) may send us a notice requesting that the content or material be removed, or access to it blocked. Notices must be sent in writing by email to DMCAnotice@MLSGrid.com. “The DMCA requires that your notice of alleged copyright infringement include the following information: (1) description of the copyrighted work that is the subject of claimed infringement; (2) description of the alleged infringing content and information sufficient to permit us to locate the content; (3) contact information for you, including your address, telephone number and email address; (4) a statement by you that you have a good faith belief that the content in the manner complained of is not authorized by the copyright owner, or its agent, or by the operation of any law; (5) a statement by you, signed under penalty of perjury, that the information in the notification is accurate and that you have the authority to enforce the copyrights that are claimed to be infringed; and (6) a physical or electronic signature of the copyright owner or a person authorized to act on the copyright owner’s behalf. Failure to include all of the above information may result in the delay of the processing of your complaint.

Contact

Learn More About This Property

StateNV
CountyElko
CityWells
Zip Code89835
AreaWells Area
SubareaWells
Community NameRailroad Addition
Sourced by Back At You
Nearby Listings (Within 1/10 mile)
Price: $35K - $59K
sqft: 0 - 0
Listing Updated: February 4, 2026, 1:25:46 PM UTC
Real Estate Links Our Domains