$595,000
( $99.17Per Sq Foot )
 $3,194 est/mo Sourced by Back At You

4201 N Wood Drive,Okmulgee, OK 74447

Okmulgee, OK 74447

Share:

Description

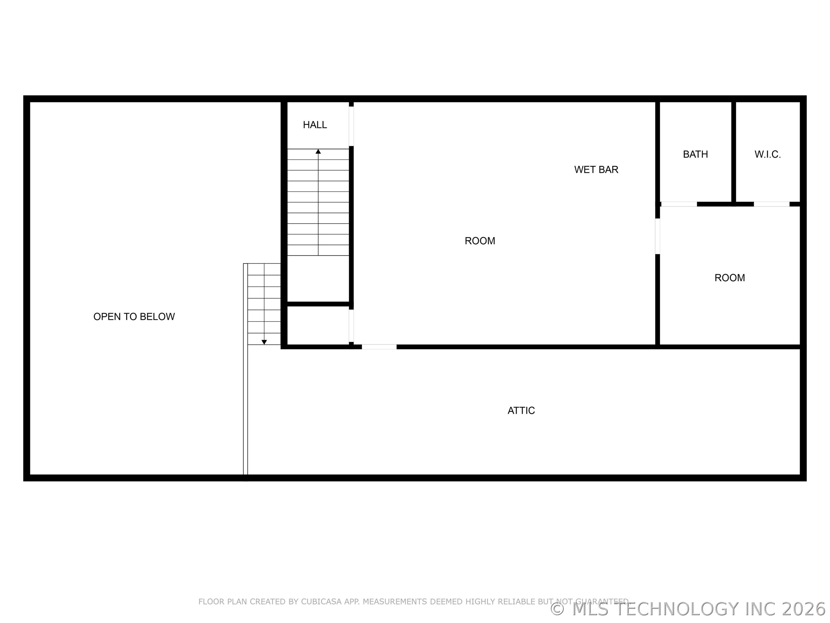
Located just off the service road parallel to Hwy 75 on the north side of Okmulgee, OK this property offers a fantastic location for your next business venture. Previously used as a distribution business, this versatile space is ideal for a wide range of commercial purposes. The main floor features a spacious area for your customers, along with multiple office spaces, both private and open - providing flexibility for your operations. Upstairs, you'll find an area dedicated to entertaining, perfect for hosting clients or team gatherings. Additionally, the property features an expansive workshop area with two large overhead doors (14'x12' and 12'x12') and ceilings reaching approximately 15'. An overhead rail system is also in place, offering convenience for moving materials or equipment throughout the space. With its prime location and ample space, this property offers endless possibilities for your business!

Details

MLS #2604776
Listing TypeFor Sale
StyleIndustrial
Sub-TypeResale
StatusPending
Year1990
Days On Site45
Listing Provided ByOffice Staging Realty | John Hall

Features

SQ Feet6,000
Zoningurban comm
Acreage5.00

Parking

Parking FeaturesOff Street, Parking Spaces

Taxes

Tax Annual Amount1040

Location

Community FeaturesSidewalks

Area Information

StateOK
CountyOkmulgee
CityOkmulgee
Zip Code74447
Sourced by Back At You

Request a showing

Request a showing

Loading Form
MLS Internet Data Exchange (IDX) information is provided exclusively for consumers’ personal, non-commercial use and may not be used for any purpose other than to identify prospective properties consumers may be interested in purchasing, and that the data is deemed reliable but is not guaranteed accurate by the Back at You MLS.

Contact

Learn More About This Property

StateOK
CountyOkmulgee
CityOkmulgee
Zip Code74447
Sourced by Back At You
Listing Updated: March 11, 2026, 9:16:19 AM UTC
Real Estate Links Our Domains